!Luxuriöses Penthouse mit Blick über die malerischen Weinberge. Über 4 m hohe Decken!

Diese exklusive Penthouse-Wohnung ist ein wahres Juwel und vereint Luxus, Privatsphäre und stilvolles Wohnen unter einem Dach! Sie befindet sich in einem gepflegten 5-Familienhaus und liegt im obersten Geschoss – unter der Wohnung befinden sich lediglich Nachbarn, was für ein besonders ruhiges und ungestörtes Wohngefühl sorgt. Die außergewöhnlich hohen Decken unterstreichen das großzügige Raumgefühl und verleihen der Wohnung im Loft-Stil eine elegante, luftige Atmosphäre.
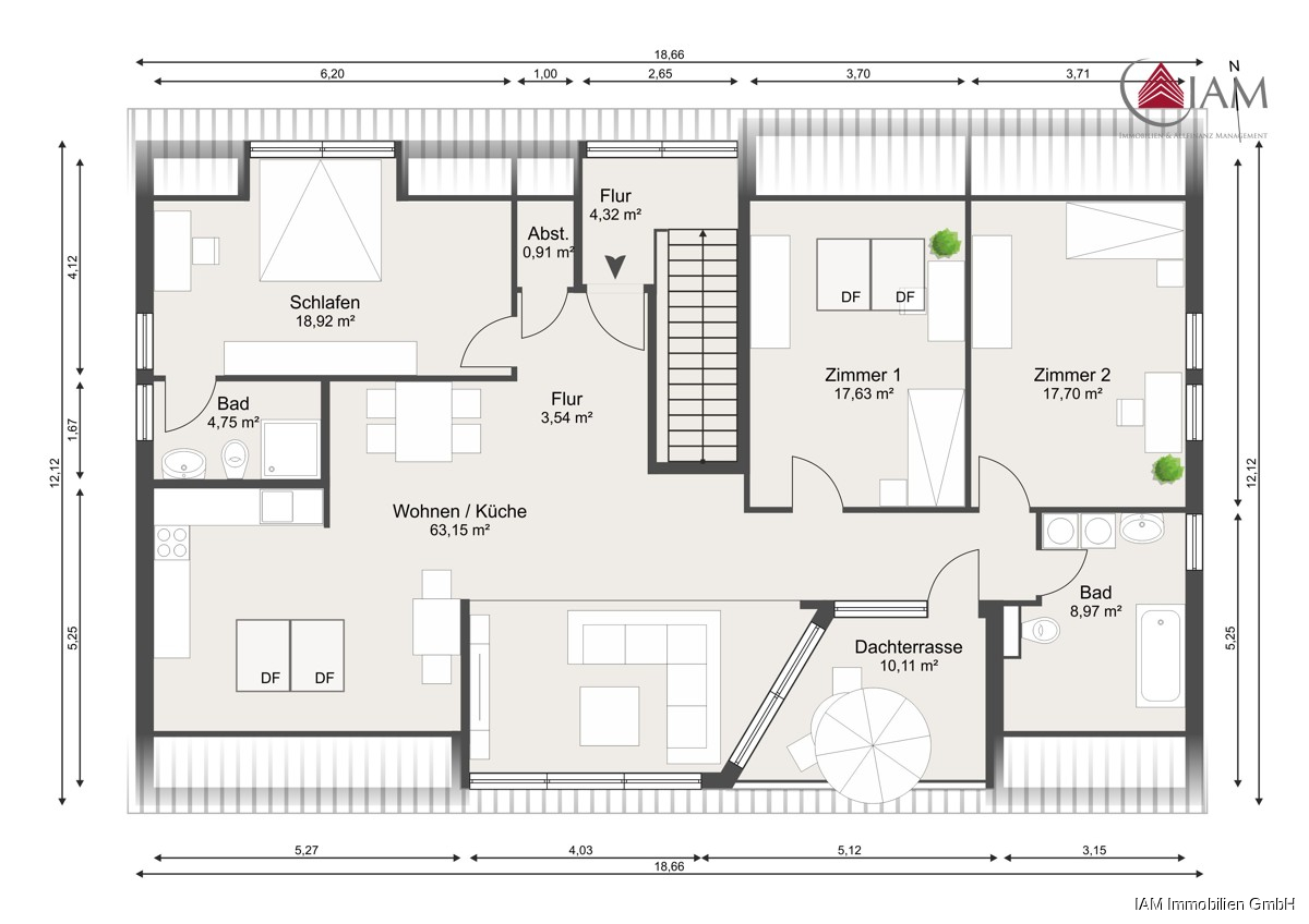
Mit drei komfortablen Schlafzimmern, zwei modernen Badezimmern (eines davon en Suite), einem offenen Küchebereich sowie einem weitläufigen Wohnzimmer mit Zugang zum Balkon und herrlicher Aussicht ist diese Wohnung der perfekte Rückzugsort. Ob zum Entspannen oder zum geselligen Beisammensein mit Freunden und Familie – hier finden Sie Raum für Lebensqualität auf höchstem Niveau.
Vom Treppenhaus aus gelangen Sie in den offenen Wohn- und Kochbereich, der mit seiner einladenden und zugleich repräsentativen Gestaltung überzeugt. Genießen Sie hier Ihre Privatsphäre, stilvollen Komfort und einen durchdachten Grundriss, der keine Wünsche offenlässt.
Das gesamte Wohnensemble verkörpert eine architektonisch durchdachte Planung auf höchstem Niveau – ein Zuhause für Menschen mit Anspruch.
Flächen
- Wohnfläche: 145 m²
- Wohneinheiten: 12.00
- Zimmer insgesamt: 4
- Schlafzimmer: 3
- Badezimmer: 2
- Etage: 2
- Stellplätze: 2
- TG-Stellplätze: 2
Zustand & Erschließung
- Keller: voll unterkellert
Sonstiges
*Alle Angaben, insbesondere zu Preisen, Wohnflächen, Ausstattung, Bezugsfertigkeit Bildern und Skizzen sind ohne Gewähr. Irrtum vorbehalten. Die Visualisierungen dienen lediglich zur visuellen Darstellung und können der Ausführungsplanung abweichen.
Bitte beachten Sie, dass die Bilder, die Sie von der Wohnung gesehen haben, den aktuellen Stand der Wohnung zeigen. Die Wohnung wird jedoch schlüsselfertig übergeben, was bedeutet, dass alle Arbeiten bis zur Übergabe abgeschlossen sein werden und die Wohnung somit in einem bezugsfertigen Zustand sein wird.
- Immobilie ist verfügbar ab: sofort
HIGHLIGHTS DES OBJEKTS
-über 4 m hohe Decken – großzügiges Raumgefühl mit Loft-Charakter
-Photovoltaik-Anlage – nachhaltig und energieeffizient
-Bad en Suite – exklusives Wohlfühlbad direkt am Schlafzimmer
-Hochwertige XXL-Fliesen & Sanitärobjekte – edles Design und beste Materialien
-2 Tiefgaragenstellplätze – komfortabel und wettergeschützt
-Luftwärmepumpe mit Kühlfunktion – energieeffiziente Wärme- & KlimatisierungFOLGENDE AUSSTATTUNGSMERKMALE GEHÖREN SELBSTVERSTÄNDLICH ZUM STANDARD DIESES OBJEKTS
-Fußbodenheizung mit Einzelraumregelung
-Elektrische Rollläden mit dezentraler Steuerung
-Dreifachisolierverglaste Fenster für optimalen Schallschutz und Energieeffizienz
-Hochwertige Parkettböden
-Bodengleiche, begehbare Dusche und Badewanne
-Moderne Videosprechanlage für mehr Sicherheit- Heizungsart: Zentralheizung
Die Alzenauer Straße in Alzenau-Hörstein ist eine zentrale Lage in der Ortschaft. Die Straße ist eine belebte Hauptstraße, die von verschiedenen Geschäften, Restaurants und öffentlichen Verkehrsmitteln umgeben ist. In der unmittelbaren Umgebung gibt es Supermärkte, Apotheken, Banken und verschiedene kleinere Geschäfte.
Die Lage ist gut mit öffentlichen Verkehrsmitteln erreichbar. Es gibt eine Bushaltestelle in der Nähe, von der aus man verschiedene Ziele in der Umgebung erreichen kann. Auch der Bahnhof ist nicht weit entfernt und bietet Anschluss an die umliegenden Städte und Gemeinden.
Die Haupstraße 1 ist ein beliebter Treffpunkt für Einheimische und Touristen gleichermaßen. Es gibt viele Restaurants und Cafés, in denen man eine Vielzahl von Speisen und Getränken genießen kann. Auch kulturelle Veranstaltungen finden regelmäßig in der Umgebung statt, so dass es immer etwas zu tun gibt.
Insgesamt bietet die Haupstraße 1 in Alzenau-Hörstein eine sehr gute Lage mit vielen Annehmlichkeiten und Möglichkeiten für Freizeitaktivitäten.
Das Objekt befindet sich in belebter Wohnlage in Alzenau-Hörstein. Die Buslinien 31 und 32 verkehren in der Nähe. In wenigen Autominuten erreichen Sie den Autobahnanschluss zur A45 und sind somit umgehend in Hanau, Offenbach oder Frankfurt am Main. In Hörstein finden Sie Alles, was ein Stadtteil braucht und das Leben angenehmer macht: Einkaufsmöglichkeiten, Schulen, Kindergarten, Kitas, Ärzte und Apotheken.
Hanau ca.: 13 Min
Aschaffenburg ca.: 14 Min.
Flughafen Frankfurt ca.: 26 Min
Frankfurt ca.: 28 Min
Generationenpark: ca. 4 km
Naturschutzgebiet Alzenauer Sande ca.: 4 km- Kaufpreis: 598.000 €
- Stellplatzkaufpreis (Tiefgarage): 17.500 €
Grundrisse

Dein Kontakt bei uns
- E-Mail: dr@iam-deutschland.de
- Telefon: 004917646614838
- Mobil: 004917646614838
- Weitere Informationen: www.iam-deutschland.de
Friedrich-Ebert-Anlage 11A, 63450 Hanau
- E-Mail (Zentrale): tz@iam-deutschland.de
- Telefon (Zentrale): 004961811808510